宇都宮市内
投稿日: 2025.08.26 / 最終更新日: 2026.02.17

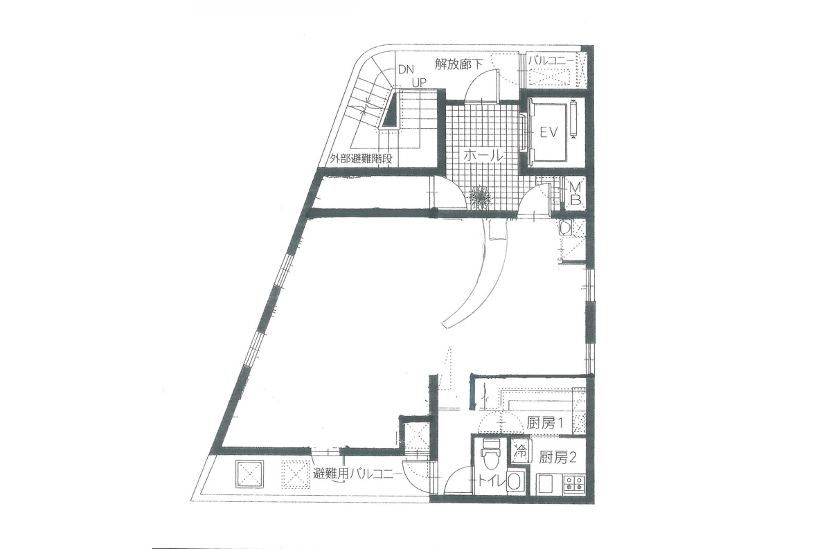
宇都宮市東宿郷【ソフィアⅡ】

物件概要

所在地
宇都宮市東宿郷2丁目13-12
地積
地目
宅地
用途地域
商業地域
構造
鉄骨造
床面積
4F 】 57.37㎡(17.35坪)
建築年
2005年10月
賃貸条件
≪ 4F  1フロア(17.35坪) ≫
月額賃料: ¥198,000円
共 益 費: ¥5,000円
礼  金:1ヶ月分
敷  金:2ヶ月分
期  間: 相談
契約形態

その他備考